Holz- und Massivbau-Anschlüsse planen und verarbeiten
Die Grundlagen des Holz-Hybridbaus werden im Bauingenieur 04|2022 vorgestellt. Hier nehmen wir ergänzend einzelne Details in den Fokus – vom Sockel bis zum Dach.
Typisch für Holz-Hybrid-Gebäude sind Konstruktionen, die die Vorzüge von Massiv- und Holzbau gezielt nutzen, indem sie den Bauelementen Funktionen und Eigenschaften klar zuordnen. Unser Bild zeigt als Beispiel das Umweltamt Dessau.
Foto: Sebastian Kringel
Es ist nicht von der Hand zu weisen, dass der Holz-Hybridbau hohe Anforderungen an Planung und Verarbeitung stellt. Die Ausbildung der Anschlüsse an der Schnittstelle, an der beide Materialwelten aneinanderstoßen, ist dabei der Schlüssel für eine erfolgreiche Anwendung der Holz-Hybridbauweise. In der Ausgabe 04|2022 des Bauingenieur ist der Artikel „Hohe Anforderungen an Planung und Ausführung“ enthalten, der sein Augenmerk vor allem auf den Konstruktionstypus der nicht-tragenden Holzfassade in Kombination mit den anderen Bauteilen in Massivbauweise (tragend) beziehungsweise Trockenbau (nicht-tragend) legt. Er präsentiert Lösungsmöglichkeiten für die Fassadenvarianten „vorgestellt“ und „eingestellt“ (siehe Kasten), die im Gegensatz zur vorgehängten Variante in Holzbauweise am wirtschaftlichsten herzustellen sind.
Im Folgenden stellen wir einige wichtige Anschlussdetails vor, die in dem erwähnten Artikel aus Platzgründen nicht enthalten waren, und erklären, worauf vor allem geachtet werden soll.
Aufbau der Holzkonstruktion
Ausgangsbasis ist dabei eine Holzkonstruktion, die aus einem Holzrahmenwerk mit Schwelle, Ständern und Rähmholz, einer äußeren Beplankung mit Gipsfaserplatten und einer innenseitigen Beplankung mit einer Vapor-Platte von Fermacell besteht, die zugleich die Funktion der Dampfbremse übernimmt. Die Dämmung der Gefache erfolgt zum Beispiel mit Mineralwolle beziehungsweise Zellulose- oder Holzfaserdämmung.
Dieser einfache Aufbau bietet zugleich für die Bauart eine Feuerwiderstandsklassifizierung von F30-B. Dabei sind die jeweiligen nationalen Verwendbarkeitsnachweise zu beachten. Die außenseitige Gipsfaserplatte ist mit einer hochwertigen Fassadenschutzbahn (Wandschalungsbahn) zu schützen, die an allen Anschlüssen wasserdicht anzuschließen ist. Damit erfüllt sie die Funktion einer Windsperre, dient als zweite wasserführende Ebene und schützt insbesondere zugleich die Fassadenelemente bei Montage und während der Bauzeit vor eindringender Baufeuchte.
Ist während der Baumaßnahme ein Witterungsschutz der Fassadenelemente gewährleistet, zum Beispiel wenn die geschlossene hinterlüftete Fassade bereits angeordnet ist, dann kann auf die wasserführende Ebene bei Gipsfaserplattenverzichtet werden, weil Fermacell-Gipsfaserplatten laut ETA-03/0050 der NKL2 gemäß DIN EN 1995–1 zugeordnet sind. In diesem Fall werden die dicht gestoßenen Plattenfugen der Gipsfaserplatten im Außenbereich zur Winddichtung mit dem Fermacell Tape AWS abgeklebt.
Beispiel für eine Fassadenbekleidung
Als hinterlüftete Fassadenbekleidung wurde eine HardiePanel-Fassadenplatte gewählt, die auf einer Holzlattung (Querschnitt wenigstens 30/60 mm) mit geeigneten Schrauben befestigt wird. Zwischen Lattung und Fassadenplatte ist ein EPDM-Band zu verlegen, das beidseitig jeweils 5 mm über die Lattung hinaussteht und den Schraubenkanal vor dem Eindringen von Schlagregen und Fassadenwasser schützt.
Das Fassadenelement kann alternativ in der Ausführung als Direktbekleidung mit einer Powerpanel HD von Fermacell, einem Wärmedämmverbundsystem auf den Gipsfaserplatten oder in einer weiteren Ausführung als hinterlüftete Fassade mit kleinteiliger Fassadenbekleidung Hardie VL Plank / Hardie Plank beziehungsweise einer klassischen Holzschalung erstellt werden.
Dauerhafter Sockelanschluss
Ein Schlüsseldetail bei jeder Fassade ist der Sockelanschluss, weil hier die Aspekte Robustheit und Fehlertoleranz besonders wichtig sind: Es geht insbesondere um die Dauerhaftigkeit der Schwelle über die gesamte Nutzungsdauer der Fassade. Der hier gezeigte Fall, bei dem das Niveau des Geländes identisch mit der Oberkante des Fertigfußbodens ist (Voraussetzung für barrierefreien Austritt), ist besonders anspruchsvoll, weil die Unterkante der Schwelle unter dem Gelände zu liegen kommt.
Ein möglicher Lösungsansatz besteht in der Ausbildung eines Grabens vor dem Sockel. Er sollte wenigstens 30 cm breit und so tief sein, dass der Abstand zwischen Schwelle und Kiesschüttung wenigstens 15 cm, besser 30 cm beträgt. Dabei kann der Graben zum Beispiel mit Beton-Winkelsteinen ausgebildet werden, die auf Magerbeton versetzt sind. Der Spalt zwischen Fassadenbekleidung und Winkelstein ist mit einem Gitterrost auf Konsolen zu überbrücken. Der Gitterrost kann dann auf identischer Höhe, jedoch mit größerer Auskragung als Anschluss für die benachbarten Terrassentüren genutzt werden.
Die eigentliche Schwelle ist mit geringerer Breite als die sonstigen Hölzer der Holzrahmenelemente ausgebildet, sodass sie bündig mit der Deckenkante der Kellerdecke beziehungsweise Bodenplatte abschließt. Sie wird vor dem Aufstellen der Fassadenelemente ausgerichtet und mit Schwerlastdübeln montiert. Die äußere Abdichtung der Schwelle kann somit ohne Versprünge direkt an die Vorderkante der Kelleraußenwand beziehungsweise an die Stirnseite der Bodenplatte erfolgen. Der Spalt zwischen Kellerdecke oder Bodenplatte und Schwelle wird später mit Quellmörtel kraftschlüssig verschlossen.
Das Fassadenelement endet unten mit einer auskragenden Schwelle aus statisch ansetzbarem Schichtholz und wird unterseitig angedichtet. Auf diese Abdichtung ist die Fassadenschutzbahn zu verkleben oder anderweitig dauerhaft anzuschließen. Die Perimeterdämmung des Kellers beziehungsweise der Bodenplatte stößt von unten gegen die Schwelle. Damit sitzt die Schwelle – bauphysikalisch günstig – im warmen Bereich der Konstruktion. Die Perimeterdämmung ist noch abzudecken, zum Beispiel mit einem Sockelputz oder einem Sockelblech.
Bei der Ausführung mit dem Powerpanel HD von Fermacell oder einem Wärmedämmverbundsystem ist besondere Aufmerksamkeit beim unteren Abschluss der äußeren Bekleidung geboten, weil hier immer mit einer besonderen Feuchtebelastung zu rechnen ist. Die Putzschicht ist mit einem Abschlussprofil mit Abtropfkante abzuschließen (z. B. Sockelprofil HD beim Powerpanel-HD-System).
Wichtig ist ferner der innenseitige luftdichte Anschluss. Dieser erfolgt von der Vapor-Platte auf die Oberkante der Kellerdecke oder Bodenplatte mit geeigneten Dichtbändern oder einer beidseitig abgedichteten Folie. Die Installationsebene wird ganz nach unten geführt, damit der Estrichaufbau einen klaren, wärmebrückenfreien seitlichen Abschluss erhält.
Stahlbetonaufkantung als Alternative ohne Graben oder Rinne
Sofern man die Ausbildung eines Grabens beziehungsweise einer Rinne vor der Fassade vermeiden möchte, kann alternativ die Schwelle auf einer Stahlbetonaufkantung montiert werden, die so hoch ausgebildet ist, dass die Unterkante der Schwelle wenigstens 5 cm, besser 15 cm über dem Gelände liegt. Auch in diesem Fall ist eine Schüttung aus Rollkies mit einer Breite von wenigstens 30 cm vor der Fassade auszubilden, deren Höhe mit einem Leistenstein oder Ähnlichem zu sichern ist.
Die äußere Abdichtung der Schwelle ist dann wenigstens 15 cm über Gelände zu führen. Im Bereich der Terrassentüren ist die Betonaufkantung zu unterbrechen, was zu einer komplexen Geometrie der Abdichtung im Bereich zwischen Schwelle und Terrassentüren führt, die genauestens zu planen ist.
Sofern das Gelände wenigstens 15 cm unter der Oberkante der Kellerdecke oder Bodenplatte liegt, sind die Ansprüche an die Abdichtung der Schwelle geringer. Hier muss nur gewährleistet sein, dass die Höhe des Geländes mit einem Leistenstein und davor angeordneter Rollkiesschicht gesichert ist. Sofern dies nicht garantiert werden kann (z. B. schwieriger Geländeverlauf) ist der Abstand zwischen Gelände und Unterkante Schwelle auf wenigstens 30 cm zu erhöhen.
Der Deckenanschluss stellt vor Grundsatzentscheidungen
Der Deckenanschluss zählt zu den Detailpunkten, die beim Hybridbau eine Grundsatzentscheidung erfordern. Entscheidend dabei ist, in welcher Lage zum Massivbaukörper die Holzkonstruktion der Fassade platziert sein soll. Bei der vorgestellten Bauweise läuft die Holzfassade am Massivbau vorbei, es kann hier also Element auf Element gestellt werden. Dies erleichtert die Montage erheblich. Zudem kann hier die luftdichte Ebene (Vapor-Platte) ohne Versprünge an der Decke vorbeigeführt werden. Der Elementstoß wird oberhalb der Decke angeordnet, um die luftdichten Abklebungen und die Befestigung der Elemente aus einer guten Arbeitsposition vornehmen zu können.
Der Deckenanschluss stellt bei der vorgestellten Bauweise eine deutlich geringere thermische Schwächung der Fassade dar, als dies bei der eingestellten Bauweise der Fall ist. Angesichts der zu berücksichtigenden Bautoleranzen ist die Festlegung der Fugenbreite am Deckenanschluss eine sehr wichtige Entscheidung. Sie sollte unter keinen Umständen geringer als 3 cm und bei höheren Gebäuden 4 bis 5 cm betragen. Im Einzelfall sind auch größere Fugenbreiten sinnvoll. Darauf abzustimmen ist dann die Tiefe der Installationsebene, damit diese mit einem gleitenden Deckenanschluss befestigt werden kann. Hier sind immer die Randabstände der Dübel zum Deckenrand einzuhalten.
Die Holzbauelemente werden mit einem Winkel mit Langlöchern, der auf der Deckenoberkante angedübelt wird, in dem Rähmholz des unteren und in der Schwelle des oberen Elements befestigt. Diese Winkel sind statisch festzulegen. Hinter die Winkel ist vor Ausführung der Befestigung eine Folienschürze einzubauen, um den luftdichten Anschluss im Winkelbereich sicherstellen zu können.
Für die Befestigung des Gerüstes eignet sich besonders der Bereich unterhalb der Brandsperre. Das Rähmholz ist dann gegebenenfalls höher auszuführen und statisch zu dimensionieren. Die Fuge zwischen Holzbauelement und Deckenstirnseite ist vollständig mit Mineralwolle (Schmelzpunkt ab 1000 °C) auszustopfen und anschließend mit einer luft- und rauchdichten Abklebung (z. B. Fermacell Tape AWS) zu versehen. Im Hybridbau sind zur Vermeidung von Nebenwegen diese Abklebungen immer oben und unten auszuführen.
Um zu verhindern, dass die Fugendämmung nach unten herausfallen kann, ist die Fuge unterseitig mit einer Gipsfaserplatte oder wie hier gezeigt mit einem Plattenpaket (für den gleitenden Deckenanschluss) zu sichern. Oberseitig ist die Fuge brandschutztechnisch durch den Estrichaufbau und die Beplankung der Installationsebene geschützt.
Ausführung der Fassade beim Deckenanschluss
Die Fassadenbekleidung mit HardiePanel, Hardie VL Plank oder Hardie Plank ist gemäß der Verarbeitungsanleitung zu planen und auszuführen. Zwischen Fassadenplatten und Holz-Unterkonstruktion ist ein EPDM-Band einzulegen, damit die Schraubkanäle gegen eindringende Feuchtigkeit geschützt sind. Die Unterkonstruktion bei HardiePanel kann aus Holz beziehungsweise aus Aluminiumprofilen und bei Hardie VL Plank oder Hardie Plank aus Holz bestehen.
Die Fassade ist als hinterlüftete Fassade auszuführen. Die Fassadenbekleidung wird im Deckenbereich durch eine Brandsperre aus Stahlblech (z. B. 1,5 bis 2,5 mm stark, Befestigung alle 30 cm) unterbrochen. Die Auskragung ist von der Art der Lattung (senkrechte Lattung oder Kreuzlattung) abhängig. Die äußere Beplankung der Holzkonstruktion mit Gipsfaserplatten ist im Deckenbereich ohne Unterbrechungen auszuführen. Die dabei auftretende Fuge ist bauseits auszuführen beziehungsweise nachzuarbeiten. Hierbei sind die Verarbeitungsrichtlinien zur Befestigung und Fugenausbildung zu beachten und mit den Ausführenden zu besprechen (Achtung: Hier besteht ein hohes Fehlerpotenzial!).
Die Fassadenschutzbahn ist ebenfalls ohne Unterbrechungen zu verlegen. Zudem ist sie an das Brandblech anzudichten, damit eventuell anfallendes Fassadenwasser nach außen abgeleitet werden kann. Die Ausführung als Direktbeplankung mit Powerpanel HD von Fermacell oder als Wärmedämmverbundsystem erfordert spezielle Aufmerksamkeit bei der Ausbildung der waagerechten Brandsperren. In der Detailzeichnung (Bild oben) ist ein einfacher Vorschlag dargestellt, der jedoch in jedem Falle brandschutztechnisch abzuklären ist.
Das Schwellholz wird stirnseitig mit einer Gipsfaserplatte versehen und ist entsprechend zu kürzen. Damit ist eine Hinterlegung der Fuge geschaffen. Beim Wärmedämmverbundsystem ist die Brandsperre gemäß der Zulassung des Systems auszuführen. Sinnvoll ist bei beiden Systemen jedoch in jedem Falle eine brandschutztechnische Abklärung (z. B. im Rahmen einer brandschutztechnischen Bewertung).
Bei allen hier dargestellten Systemen ist zu klären, ob die Brandschutzsperren in jedem Geschoss oder nur alle zwei Geschosse auszuführen sind. Einfache Überlegungen zeigen, dass die Ausführung alle zwei Geschosse nur im Ausnahmefall überzeugen kann, da die Gefahr des Brandüberschlags groß ist.
Die Installationsebene weist oben einen gleitenden Deckenanschluss auf. Dieser ist immer dann notwendig, wenn die zu erwartenden Deckendurchbiegungen größer sind, als es die Zulassung des Trockenbausystems zulässt. Sie hängen von vielen Faktoren ab und sind daher statisch zu berechnen. Zu überlegen ist ferner ob innenseitig nur eine einlagige Beplankung (einfache Ansprüche) oder doch besser eine zweilagige Beplankung (bessere Befestigungsmöglichkeiten, höhere Speichermasse für Sommerklima, besserer Schallschutz) ausgeführt wird.
Sofern kein gleitender Deckenanschluss notwendig ist, kann alternativ die Fuge unterhalb der Fugendämmung mit einem waagerechten Streifen aus Gipsfaserplatten gesichert werden. Damit ist dieser Punkt ebenfalls sicher gegen die Deckenplatte aus Beton gekapselt und ein Herausfallen der Fugendämmung wird verhindert.
Fensteranschluss oben und unten
Bei der Entwicklung der Fensteranschlüsse ist eine Reihe von bauphysikalischen Fragen zu beantworten. Nicht zuletzt prägt dieses Detail entscheidend die Baugestaltung. Zu diesen Fragen zählt beispielsweise die Lage der Fenster im Bauteilaufbau. Eine außenbündige Lage ist aufgrund von Schlagregen- und Wärmeschutz problematisch und erfordert Sonderlösungen. Eine innenbündige Lage ist aus Sicht des Wärmeschutzes nicht optimal und verhindert Abstellmöglichkeiten im Fensterbereich (keine oder nur eine schmale Fensterbank).
Zu bedenken ist auch die Integration eines Sonnen- und Blendschutzes beziehungsweise von Verdunklungsmarkisen oder Ähnlichem (auch deren nachträgliche Installation), wie sie in den im Folgenden näher betrachtet werden. Sofern Verdunklungsmarkisen etc. im Fassadenaufbau integriert werden sollen, bestimmen sie die Fensterlage entscheidend mit. Wenn man eine gleichmäßige Außenwirkung der Fensteröffnungen anstrebt, werden auch die Fenster ohne Sonnen- und Blendschutz dieselbe Fensterlage besitzen.
Die Holzkonstruktion mit Sturz ist bei großen Öffnungen statisch zu dimensionieren. Aus Brandschutzgründen wird empfohlen, die Gipsfaserplatten auch unterhalb des Sturzes und oberhalb des Brüstungsholzes herumzuführen. Die Fassadenschutzbahn wird allseitig bis an den Blendrahmen geführt und dort verklebt.

Fensteranschluss mit Rolladen – vorgestellt: hinterlüftete Fassade mit HardiePanel (außen).
Foto: Fermacell
In der dargestellten Detailzeichnung (oben) sitzen die Fenster relativ weit außen. Dies ermöglicht noch eine knappe Überdämmung des oberen Fensteranschlusses mit einer druckfesten Dämmung. Die Laibungsplatte benötigt innenseitig einen Anschlag (z. B. Anschlussprofil aus Aluminium beziehungsweise Nut im Fensterstock bei Holz- oder Alu-Fenstern) und kann dann durch die Dämmung hindurch in den Sturz befestigt werden.
Der untere Abschluss mit Fermacell Powerpanel HD oder einem WDVS-System erfordert im Sturzbereich und der oberen Fensterlaibung besondere Aufmerksamkeit, weil hier immer mit einer besonderen Feuchtebelastung zu rechnen ist. Die Putzschicht ist mit einem Abschlussprofil mit Abtropfkante abzuschließen (z. B. Sockelprofil HD beim Powerpanel-HD-System), der Anschluss an den Blendrahmen ist mit einer wind- und schlagregendichten Anputzleiste auszuführen.
Eine Überdämmung des Fensteranschlusses unten ist in der Regel nicht möglich. Notwendig ist in jedem Fall die sorgfältige Abdichtung der Fassadenschutzbahn an den unteren Fensterstock. Diese dient als zweite Abdichtungsebene unter dem Fensterblech. Diese Ausführung ist vor allem deshalb geboten, weil die normalen vorgefertigten Fensterbleche in den Ecken nicht wasserdicht sind. Das liegt daran, dass die seitlichen Aufkantungen als Aufschiebprofile das sogenannte „Gewerkeloch“ aufweisen. Die Fassadenschutzbahn ist ohnehin bereits in der Montagephase unverzichtbar, um das Eindringen von Baufeuchte in diesen kritischen Bereich während der Bauphase zu verhindern.
Besondere Bedeutung beim Fensteranschluss hat die luftdichte Abdichtung mit geeigneten Klebebändern. Die Ecken sind dabei mit besonderen Quetschfalten sicher auszubilden. Zuvor sind die Fugen auszudämmen. Die alternative Ausführung mit speziellen vorkomprimierten Fugenbändern erfordert besondere Sorgfalt bei der Auswahl der Profile und bei der Ausführung in den Ecken. Ansonsten – das zeigen die Erfahrungen der Vergangenheit (z. B. im Rahmen von Blower-Door-Tests) sind die Ergebnisse im Hinblick auf die Luftdichtigkeit bei dieser Ausführungsvariante oftmals nicht befriedigend.
Flachdachanschluss mit Attika
Der Attika-Anschluss eines Flachdaches erfordert eine ganze Reihe von Überlegungen und Lösungsansätzen. Diese betreffen vor allem die Abstimmung der Konstruktion mit den Abdichtungsfragen. Der vorgestellten Bauweise entsprechend wird das Fassadenelement der Dachattika nach oben weitergeführt. Dabei hängt es von den Transportmöglichkeiten des Holzbaubetriebs ab, ob hier das letzte Wandelement, wie in der folgenden Detailzeichnung dargestellt, nach oben verlängert werden kann oder ein eigenes Attikaelement gefertigt werden muss.

Flachdachanschluss mit Attika – vorgestellt: hinterlüftete Fassade mit HardiePlank (außen).
Foto: Fermacell
Innenseitig ist eine Sperrholz- oder Mehrschichtplatte vorgesehen, damit die gezeigte Winkelbefestigung und die bei einer Kunststoffabdichtung unbedingt notwendige Kehlfixierung befestigt werden kann. Diese Platte ist daher vom Statiker zu dimensionieren. Der obere Abschluss erfolgt mit einem oben schrägen (nach innen geneigten) Rähmholz oder einer Keilbohle, die zugleich zur Befestigung der Abdichtung und Attikaverblechung dient.
Die Dampfbremse übernimmt zudem die Funktion der Notabdichtung und wird auf der Stahlbeton-Deckenplatte am besten mit einer Bitumenbahn, die im Gießverfahren aufgebracht wird, ausgeführt. Diese Ausführung ist robust und hinterlaufsicher. Die gezeigten Winkelbefestigungen sind mit einer zweiten Lage abzudichten. Die zur Entwässerung während der Bauzeit eingearbeiteten Notüberläufe können dauerhaft verbleiben, wenn sie außen mit einem Lochblech versehen und mit Mineralwolle o. ä. ausgestopft werden. Sie dienen dann als Zeigesystem für eine undichte Hauptabdichtung. Zugleich kann im Zuge des Einbaus eingebrachte Baufeuchte im Dämmaufbau über sie ausgetrieben werden und es entsteht kein statisches Problem, wenn die Hauptabdichtung, zum Beispiel am Ende ihrer Lebensdauer oder bei einer Beschädigung, undicht wird.
Die Dampfbremse ist bis zur Oberkante der Dämmung zu führen. Die Hauptabdichtung wird auf einer dafür zugelassenen druckfesten Gefälledämmung aufgebracht. Gezeigt ist hier ein „durchgeklebter“ Aufbau, bei dem sowohl alle Dämmlagen als auch die Hauptabdichtung mit geeigneten Bauklebern beziehungsweise Selbstklebeschichten kraftschlüssig mit der Dachplatte verbunden sind. Im Fall einer Kunststoffabdichtung (z. B. PVC, Polyolefine) ist im Bereich der Attikaaufkantung eine Kehlfixierung auszuführen. Bei zweilagig verlegten Bitumenbahnen ist die erste Bahn bei der Aufkantung hochzuführen und die zweite Lage im rückwärtigen Versatz zu verlegen. Die Hauptabdichtung wird in jedem Fall bis über den Attikakopf geführt und dort mit der Fassadenschutzbahn verbunden.
Die Attikaverblechung wird am besten spenglermäßig ausgeführt. Die Auskragung und die äußere Abkantung sind nach den Regeln für Abdichtungen des deutschen Dachdeckerhandwerks auszuführen. Innenseitig ist in das Attikablech ein Schutzblech einzufalzen und unten lagezusichern.
Die Hauptabdichtung kann als nackte Dachabdichtung ausgeführt (dafür sind dann geeignete Dachbahnen zu verwenden) oder mit einer Kiesschüttung beziehungsweise einem Gründachaufbau geschützt werden. Die Fugen zwischen Attikaelement und Deckenstirnseite der abschließenden Stahlbetondachscheibe und zwischen Fassadenelement und Dachunterseite sind mit Mineralwolle (Schmelzpunkt ab 1000 °C) vollständig auszustopfen. Die Installationsebene wird oben mit einem gleitenden Deckenanschluss abgeschlossen. Dieser kann entfallen, wenn die Durchbiegungen im zulässigen Bereich für einen starren Anschluss bleiben.
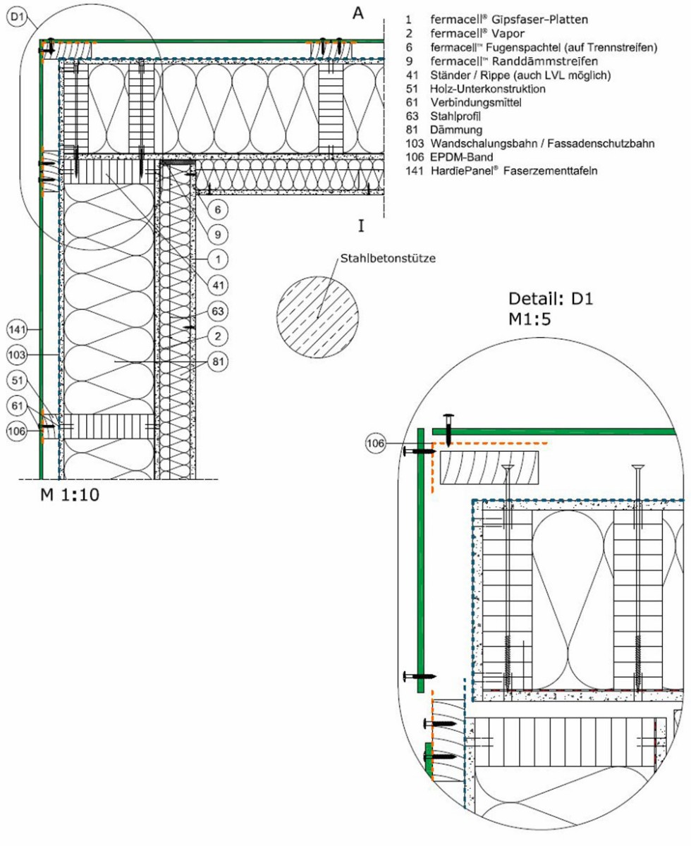
Anschluss Außenecke
Die Außenecke ist hinsichtlich der Holzrahmenelemente so auszubilden, dass die beiden Elemente kraftschlüssig miteinander befestigt werden können. Die Lattung für die Befestigung der Fassadenplatten benötigt hier so große Abmessungen, dass sie in die Hinterlüftungsebene der benachbarten Fassade auskragen kann, andernfalls sind hier zwei Latten über Eck anzuordnen. Das EPDM-Band muss über Eck geführt werden, damit jeweils die Schraubkanäle gegen eindringende Feuchte gesichert sind.
Abhängig von der Statik und dem Innenraumkonzept wird die Lage der tragenden Stütze (Stahlbeton oder Stahl) im Verhältnis zur Fassade festgelegt. In der gezeigten Detailzeichnung oben steht die Stütze mit Abstand zur Fassade frei im Raum.
Alternativ kann die Lage der Stahlbetonstütze auch so gewählt werden, dass diese in die Installationsebene eingreift. Bei der Verwendung von geeigneten Stahlstützen (z. B. auch solchen mit Betonfüllung), können diese unter Umständen auch vollständig in der Installationsebene verschwinden. Dies erfordert besondere Überlegungen, um die die dann erforderlichen Bautoleranzen definieren und einhalten zu können.
Anschluss Wohnungstrennwand
Der Anschluss zwischen Wohnungstrennwand und Fassade ist bei der vorgestellten Bauweise komplexer auszuführen als bei der eingestellten Bauweise. Durch das Einbinden der Massivwand in die Ebene der Fassade entsteht ein Versprung, der für den Brand- und Schallschutz von Vorteil ist. Nachteilig ist jedoch die Schwächung der Dämmlagen in diesem Bereich. Die dadurch verursachte Wärmebrücke ist auch aufgrund der großen Längen relevant für die Wärmebilanz des gesamten Gebäudes.
Die Elemente der Fassade müssen im Bereich der Wohnungstrennwand getrennt werden. Die dadurch entstehenden Fugen sind mit Mineralwolle (Schmelzpunkt ab 1000°C) vollständig auszustopfen. Die äußere Gipsfaserplatte und die Dämmung vor der Stirnseite der Trennwand können nur bauseits ausgeführt werden. Die Befestigung der Gipsfaserplatte und die Fugenausbildung muss gemäß Anwendbarkeitsnachweis ausgeführt werden. Dies muss gegenüber den Ausführenden klar kommuniziert werden.
Alternativ kann die Wohnungstrennwand auch als Trockenbaukonstruktion mit entsprechendem nationalen Anwendbarkeitsnachweis ausgeführt werden. Hier ist in Abhängigkeit der Gebäudeklasse zu beachten, welche Klassifizierung gefordert ist. Hierbei müssen die Trennwände die Feuerwiderstandsfähigkeit der tragenden und aussteifenden Bauteile des Geschosses aufweisen (mindestens jedoch feuerhemmend).
So gilt in Abhängigkeit der Gebäudeklasse die Anforderung:
- feuerhemmend (Gebäudeklasse 2 und 3)
- hochfeuerhemmend (Gebäudeklasse 4)
- feuerbeständig (Gebäudeklasse 5)
Auch in diesem Fall ergibt eine Trennung der Fassadenelemente an dieser Stelle aus Gründen des Brand- und Schallschutzes definitiv Sinn. Im Brandschutzgutachten ist die Ausbildung der Fuge zwischen den Holzrahmenelementen und der Anschluss der Trockenbau-Wohnungstrennwand an die Holzrahmenelemente genau abzuklären.
Das könnte Sie auch interessieren:
Weitere Beiträge aus unserem Special Holzbau
Fassade und tragende Elemente: Holzelementbau im Zweisprung









